Site with full planning permission (for the house shown here) no residency clauses. planning valid until January 2025, at Buddhauns, Kilcummin, Killarney, Co. Kerry. V93 XK50.
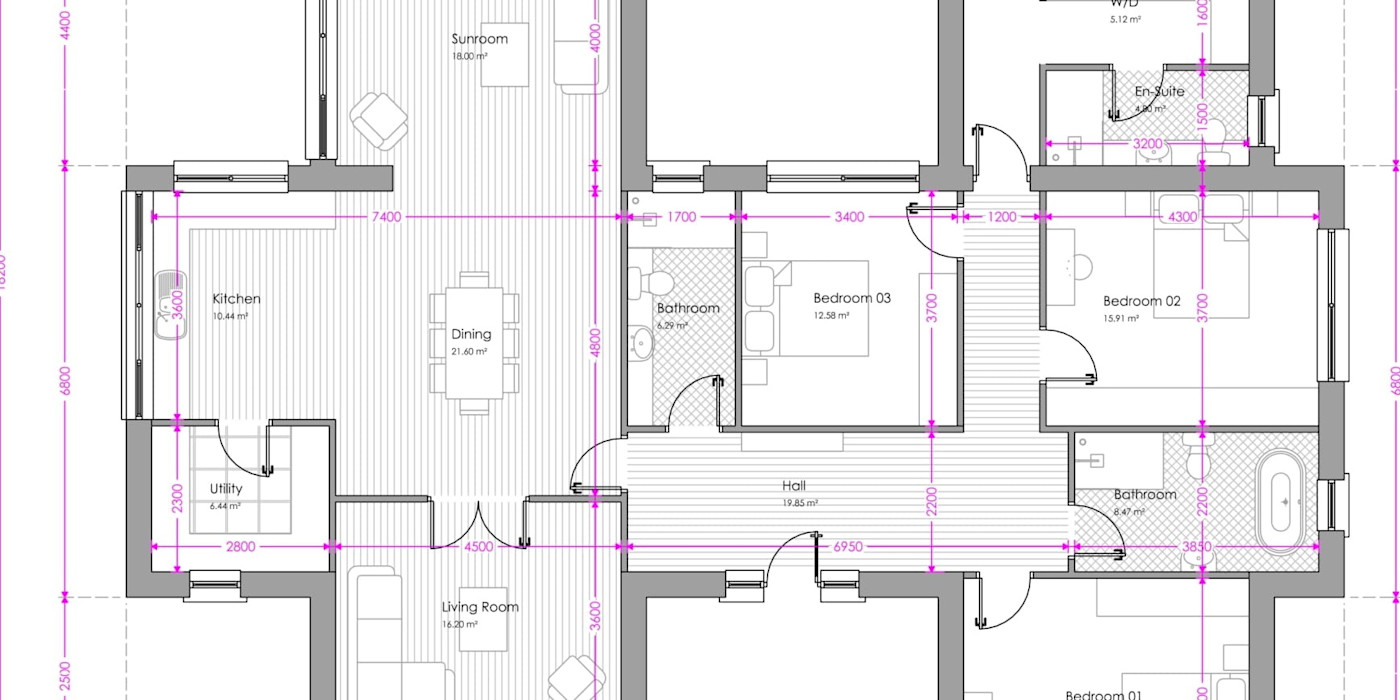
It is approx. 0.8 of an acre and is situated about 5 miles from Killarney town and 1 mile from Coolick national school. The site is in a very scenic location with panoramic views of Killarney’s mountains and valleys. It very dry, elevated roadside land with mains water, electricity, etc, “ready to go.” Planning is for an architecturally designed modern style bungalow (about 2,200 sq. ft.) which was designed to take advantage of the beautiful scenery which this site offers. It is almost impossible to find a site which has planning permission without a residency clause.








